Ville e Case Indipendenti in vendita 280 m², Thiene

Veneto Vicenza Thiene Rif. C053
+

THIENE: In nuova zona residenziale VILLA SINGOLA con giardino

Prezzo
€ 275.000
Contratto
Vendita
Tipologia
Ville e Case Indipendenti
Tipo di Proprietà
Intera proprietà
Destinazione
Residenziale
Regione
Veneto
Provincia
Vicenza
Comune
Thiene
Località
Thiene
Superficie
280 m²
Locali
8
Camere
3
Bagni
2

THIENE: in nuova zona residenziale comoda a tutti i servizi, VILLA SINGOLA degli anni ottanta con tetto rifatto nel 2005, garage doppio al piano seminterrato adiacente alla taverna, alla lavanderia e ad un ripostiglio; ampia e luminosa zona giorno, tre camere, un bagno e mansarda. Giardino di circa 400 mq circostante all'abitazione. Classe energetica G. EURO 275.000. Cristina 335 7783188

NOTE DI PREGIO:
- Totale indipendenza con spazi esterni privati
- Tetto rifatto nel 2005
- Collocata in nuova zona residenziale

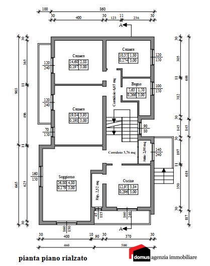
Casa singola degli anni ottanta, dalle forme geometriche squadrate che permettono, con piccoli accorgimenti, di trasformarla in una villa dalle linee moderne o contemporanee inglobandosi così, in modo perfetto, nella nuova zona residenziale dov'è collocata. Il tetto è stato rifatto con guaina e coppi nuovi nel 2005, così come le grondaie.
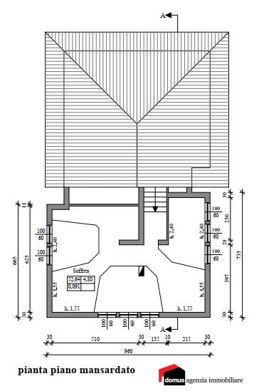
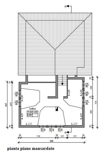
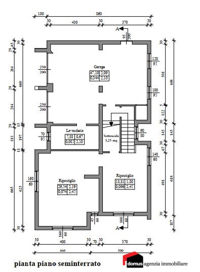
L'abitazione è caratterizzata da spazi funzionali e ben divisi: un ampio ingresso che separa la zona giorno (composta da cucina abitabile con dispensa ed ampio e luminoso soggiorno) dalla zona notte composta da tre camere ed un bagno. La mansarda è un open space che può essere utilizzato come studio, come area giochi o come zona tv. Nell'interrato ci sono la taverna arredata di cucina con caminetto funzionante, dei ripostigli, la lavanderia ed il garage doppio in parallelo.

Impianti e finiture:
Le fognature non sono allacciate alla rete comunale
L'impianto elettrico risale agli anni ottanta
L'impianto idraulico a gas/metano risale agli anni ottanta ed è allacciato alla rete comunale
Pavimenti in marmo nel soggiorno e nei corridoi, in parquet nelle camere, in ceramica in mansarda e cucina
Serramenti in alluminio alcuni con vetrocamera altri con vetro normale

Classe Energetica:

Caratteristiche

Condizioni: Abitabile
Riscaldamento: Autonomo
Parcheggio: Garage doppio
Giardino m2: 400 Privato
Piano: Multipiano - piani edificio: 2
Cucina: Abitabile
Arredato: Non Arredato
Terrazzo: No
Balcone: Si
Anno di Costruzione: 1980

Foto

THIENE: In nuova zona residenziale VILLA SINGOLA con giardino - 1
THIENE: In nuova zona residenziale VILLA SINGOLA con giardino - 2
THIENE: In nuova zona residenziale VILLA SINGOLA con giardino - 3
THIENE: In nuova zona residenziale VILLA SINGOLA con giardino - 4
THIENE: In nuova zona residenziale VILLA SINGOLA con giardino - 5
THIENE: In nuova zona residenziale VILLA SINGOLA con giardino - 6
THIENE: In nuova zona residenziale VILLA SINGOLA con giardino - 7
THIENE: In nuova zona residenziale VILLA SINGOLA con giardino - 8
THIENE: In nuova zona residenziale VILLA SINGOLA con giardino - 9
THIENE: In nuova zona residenziale VILLA SINGOLA con giardino - 10
THIENE: In nuova zona residenziale VILLA SINGOLA con giardino - 11
THIENE: In nuova zona residenziale VILLA SINGOLA con giardino - 12
THIENE: In nuova zona residenziale VILLA SINGOLA con giardino - 13
THIENE: In nuova zona residenziale VILLA SINGOLA con giardino - 14
THIENE: In nuova zona residenziale VILLA SINGOLA con giardino - 15
THIENE: In nuova zona residenziale VILLA SINGOLA con giardino - 16
THIENE: In nuova zona residenziale VILLA SINGOLA con giardino - 17
THIENE: In nuova zona residenziale VILLA SINGOLA con giardino - 18
THIENE: In nuova zona residenziale VILLA SINGOLA con giardino - 19
THIENE: In nuova zona residenziale VILLA SINGOLA con giardino - 20
THIENE: In nuova zona residenziale VILLA SINGOLA con giardino - 21
THIENE: In nuova zona residenziale VILLA SINGOLA con giardino - 22
THIENE: In nuova zona residenziale VILLA SINGOLA con giardino - 23
THIENE: In nuova zona residenziale VILLA SINGOLA con giardino - 24
THIENE: In nuova zona residenziale VILLA SINGOLA con giardino - 25
THIENE: In nuova zona residenziale VILLA SINGOLA con giardino - 26
THIENE: In nuova zona residenziale VILLA SINGOLA con giardino - 27
THIENE: In nuova zona residenziale VILLA SINGOLA con giardino - 28
THIENE: In nuova zona residenziale VILLA SINGOLA con giardino - 29
THIENE: In nuova zona residenziale VILLA SINGOLA con giardino - 30
THIENE: In nuova zona residenziale VILLA SINGOLA con giardino - 31
THIENE: In nuova zona residenziale VILLA SINGOLA con giardino - 32
THIENE: In nuova zona residenziale VILLA SINGOLA con giardino - 33
THIENE: In nuova zona residenziale VILLA SINGOLA con giardino - 34
THIENE: In nuova zona residenziale VILLA SINGOLA con giardino - 35
THIENE: In nuova zona residenziale VILLA SINGOLA con giardino - 36
THIENE: In nuova zona residenziale VILLA SINGOLA con giardino - 37
THIENE: In nuova zona residenziale VILLA SINGOLA con giardino - 38
THIENE: In nuova zona residenziale VILLA SINGOLA con giardino - 39

Mappa